sauna9 higashishinsaibashi osaka
サウナイン大阪東心斎橋
An intimate contemporary “art sauna” retreat blending modern aesthetics with the timeless philosophy of Sen no Rikyū.
現代的な美学と千利休の哲学が融合した、親密なアートサウナ空間
FACILITY DETAILS
Sauna9 Osaka Higashi-Shinsaibashi is more than a sauna – it is a contemporary art sauna retreat where architecture and stillness converge. Drawing inspiration from the 16th-century tea master Sen no Rikyū’s minimalist philosophy, we have crafted a space that embodies elegant simplicity and meditative silence. Every element here is purposefully curated, blurring the line between functional design and art. In this tranquil ambience, each guest’s experience becomes a personal expression – a modern tea ceremony of warmth and reflection.
サウナイン大阪東心斎橋は、単なるサウナに留まりません。建築と静寂が調和した現代の「アートサウナ」リトリートです。千利休の簡素な美学に着想を得て、優美な簡潔さと瞑想的な静寂が息づく空間を創り上げました。すべての要素は意図をもって選び抜かれており、実用性と芸術性の境界が溶け合っています。この静寂の中では、訪れる人それぞれの体験が静かな自己表現となります。それは温もりと内省に満ちた現代の茶会のように感じられることでしょう。
Design & Architecture
Set in a lovingly restored 100-year-old Osaka nagaya (traditional townhouse), Sauna9 marries heritage with modernity. Its facade is painted in deep charcoal-black, an austere and refined presence amid the neon-lit buzz of Shinsaibashi. Step inside, and the past and present intertwine: original wooden beams and tatami mat textures coexist seamlessly with clean lines and modern comforts. In homage to tradition, one former tea room – complete with tatami mats – has even been transformed into the sauna chamber, preserving a sense of ceremony within the design.
デザインと建築
築100年の大阪長屋を丁寧に改修し、伝統とモダニズムが見事に調和した空間です。外観は深い墨色に塗られ、賑やかな心斎橋の街並みにあっても静かに際立つ、渋く洗練された佇まいを見せます。一歩中に入ると、古い梁や畳の質感とミニマルな意匠が継ぎ目なく共存しています。伝統へのオマージュとして、かつて茶室であった畳敷きの一室をサウナ室へと生まれ変わらせました。その空間には、茶の湯さながらの静謐な趣きが宿っています。
For the bathing areas, artistry and symbolism abound. A deep soaking tub carved from black granite becomes a reflective mirror in dim light. Its still water evokes a void or starless night sky – bathing here feels like immersing oneself in an infinite cosmos. In the kitchen, a traditional stone tsukubai basin repurposed as a sink brings the spirit of the tea ceremony into daily life. As water gently bubbles in the basin, it produces a soft, soothing gurgle that infuses the space with calm.
浴室には、黒い御影石で彫り抜かれた深い浴槽があります。明かりを落とせば、その静かな水面は鏡のように闇を映し出し、虚空や星のない夜空を思わせます。その湯に身を沈めれば、無限の宇宙に抱かれているような幻想的な感覚を味わえるでしょう。
一方、キッチンには、茶庭で客人が手を清めるために使われてきた石の手水鉢(蹲踞〈つくばい〉)をシンクとして再利用しています。静かに水が石鉢に滴り落ち、小さな水音が空間に安らぎを添えます。
Sauna Experience
In the intimate, private sauna room, you set the pace of your ritual. Ladle aromatic hinoki (Japanese cypress) water over the hot stones to release a gentle, fragrant steam. Each wave of löyly carries the soothing essence of a forest, purifying your mind as much as your body.
サウナ体験
プライベートな畳敷きのサウナ室では、誰にも急かされず、自分のペースで静かな熱の儀式を堪能できます。熱せられた石に檜(ヒノキ)のアロマ水をひしゃくで注げば、柔らかな香りの蒸気(ロウリュ)が立ち上ります。森林を思わせるヒノキの香りが空間を満たし、身体だけでなく心まで穏やかに清めてくれます。
Once the deep heat has permeated your core, step outside to cool down. You might plunge into the cold bath to invigorate your senses, or breathe in the crisp night air in the little courtyard – refresh yourself however you please. Here, time melts away in your private sanctuary; there are no clocks and no strangers, only the soft hiss of steam and the sound of your own breath.
身体の芯まで温まったら、外に出て涼を取りましょう。備え付けの水風呂にざぶんと浸かって体を引き締めたり、小さな坪庭で夜風を深呼吸したりと、思いのままにリフレッシュできます。ここでは時間さえ忘れるほどのプライベートな空間が広がり、聞こえるのは静かに立ち上る蒸気の音と自分の呼吸だけです
Location & Surroundings
Nestled in the heart of Osaka’s nightlife, Sauna9 is conveniently located just a 5-minute walk from Shinsaibashi Station. The surrounding Higashi-Shinsaibashi neighborhood buzzes with energy well into the night – from lively eateries to late-night music. This vibrant setting means you can savor your sauna retreat at any hour without fear of disturbing the peace.
大阪のナイトライフの中心地にあり、地下鉄心斎橋駅から徒歩5分という抜群のロケーションを誇ります。周辺の東心斎橋エリアは深夜まで活気にあふれ、飲食店やバーから音楽の響きが絶えません。この賑やかな環境のおかげで、夜遅くにサウナを楽しんでも周囲に気兼ねする必要がありません。
Late-night sauna sessions are not only possible here – they are very much part of the experience. After an evening out on the town, you can return for a midnight sauna and find the city still softly humming outside. For those who smoke, the second-floor balcony offers an open-air space where smoking is allowed, so you can enjoy a contemplative cigarette under the night sky.
遅い時間のサウナ利用も、この場所ならではの醍醐味です。夜遊びの後に真夜中のサウナで火照った体をもう一度ととのえれば、外では街のざわめきがまだ静かに続いていることでしょう。また、喫煙者の方には2階のバルコニーでの喫煙も許可されています。夜風に吹かれながら静かに煙をくゆらせるひとときは、心を落ち着かせる特別な時間となるでしょう。
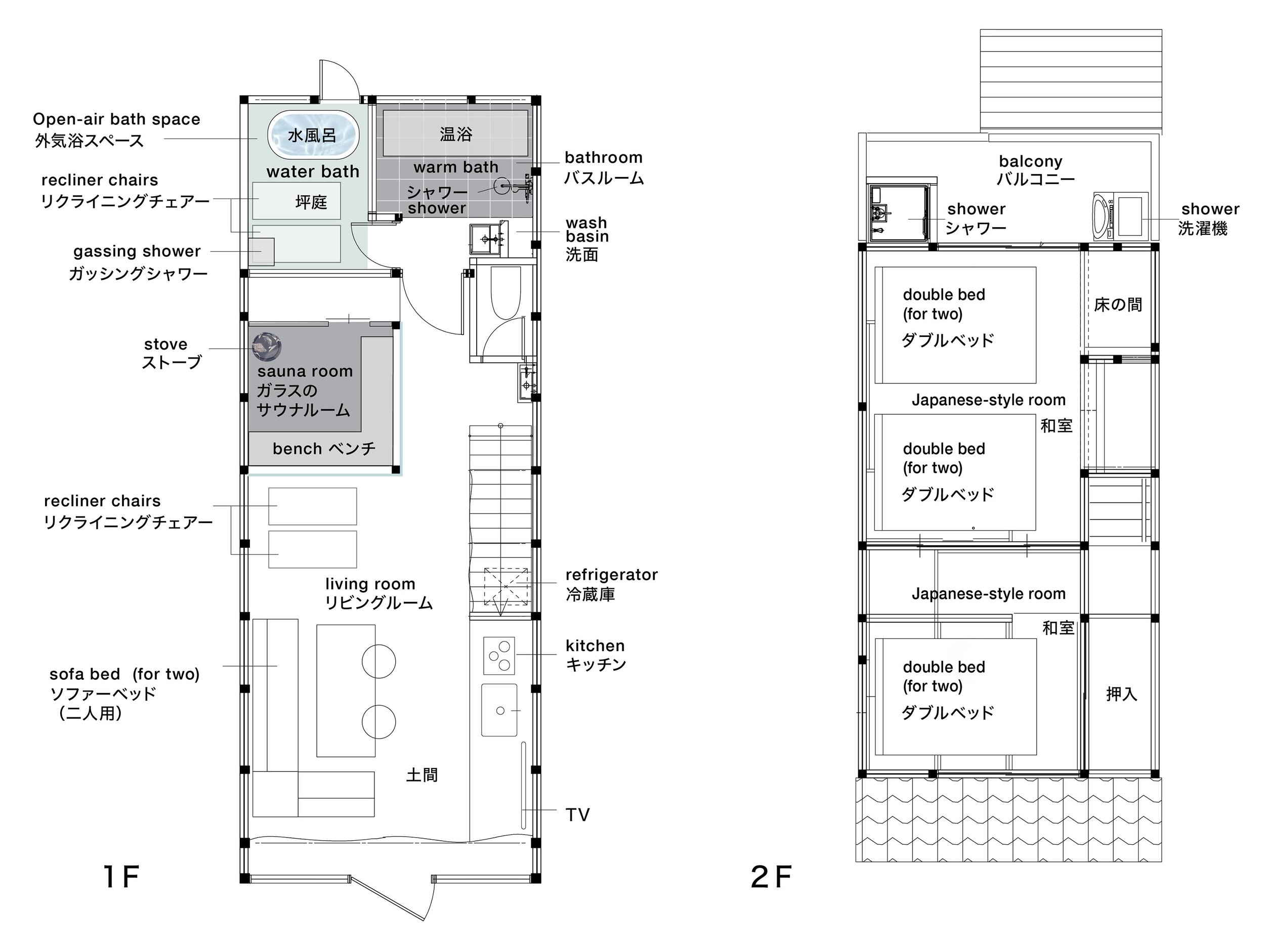
Living/dining/kitchen area, bedroom, washroom, sauna room (self-loyly), cold bath, hot bath, outdoor bath, shower, toilet
Check-in: 4pm
Check-out: 10am
Pets: No
Smoking: No
Pickup service: No
※Up to 6 people can stay
LDK·寝室·洗面室·サウナ室(セルフロウリュ)·水風呂·温浴·外気浴·シャワー·トイレ
チェックイン/16 時
チェックアウト/ 10 時
ペット/禁止
喫煙/禁止
※ 6人までお泊まりいただけます
AMENITIES
Bathroom: Bathtub, Hair dryer, Cleaning supplies, Shampoo, Conditioner, Body soap, Washlet (bidet), Outdoor shower, Hot water. Shower gel.
Bedroom and Laundry: Free washing machine (in-room), Free dryer (in-room).
Essentials: Towels, Sheets, Soap, Toilet paper, Hangers, Bed linen, Cotton bed linen, Blackout curtains, Iron.
Entertainment: TV, Books and other reading material.
Heating and Cooling: Air conditioning – Ductless individual control, Central heating.
Home Safety: Fire alarm, Fire extinguisher, First aid kit.
Internet and Office: Wi-Fi, Dedicated workspace.
Within the Shared Space: Kitchen and dining, Full kitchen, Space where guests can cook, Refrigerator, Microwave, Dishes & cutlery, Bowls, chopsticks, plates, cups, etc., Freezer, Induction cooktop, Oven, Electric kettle, Coffee maker: Espresso machine, Wine glasses, Dining table, Coffee.
Location Features: Private entrance, Separate building/private entrance, Nearby coin laundry.
Outdoor: Private backyard for guests, Open space on the property (usually a lawn).
Outdoor Furniture: Outdoor reclining bed.
Other Facilities: Private sauna, Private living room.
Services: Luggage storage allowed (for guests who want to wander around light before check-in or after check-out), Long-term stays allowed (stays of 28 nights or more are possible), Self check-in, Keypad lock (please use the door code to enter the listing).
· バスルーム
バスタブ・ヘアドライヤー・清掃用品・シャンプー・コンディショナー・ボディソープ・ウォシュレット(ビデ)・屋外シャワー・給湯。シャワージェル
· 寝室とランドリー 無料洗濯機(室内) 無料乾燥機(室内)
· 必需品 タオル・シーツ・石鹸・トイレットペーパー・ハンガー・シーツ類・綿のシーツ類・遮光カーテン・アイロン
· エンターテインメント テレビ・本などの読み物
· 冷暖房 エアコン – ダクトレス式個別空調・セントラルヒーティング
· ホームセーフティ 火災報知器・消火器・救急箱
· インターネットとオフィス Wi-Fi・仕事専用スペース
· 共用スペース内
キッチンとダイニング・フルキッチン・ゲストが料理できるスペース・冷蔵庫・電子レンジ・食器&カトラリー・ボウル、箸、皿、カップなど・冷凍庫・IHコンロ・オーブン・電気ポット・コーヒーメーカー:エスプレッソマシン・ワイングラス・ダイニングテーブル・コー ヒー
· 立地の特徴 専用の玄関・離れ/専用玄関・近場のコインランドリー
· 屋外 ゲスト専用の裏庭・敷地内にあるオープンスペース(芝生の場合が一般的)
· 屋外家具 屋外用リクライニングベッド
· その他施設 専用サウナ・専用のリビングルーム
· サービス
荷物預かりOK(チェックイン前やチェックアウト後、身軽にぶらつきたいゲストに対応)
長期滞在OK(28泊以上のステイもできます)
セルフチェックイン・テンキー錠(ドア·コードを使ってリスティングにお入りください)
ACCECC
Address: 〒542-0083 1-14-17 Higashi Shinsaibashi, Chuo-ku, Osaka
Train: 3 minutes walk from Osaka Metro Nagahoribashi Station, 5 minutes walk from Shinsaibashi Station
Car: 50 minutes by car from Kansai International Airport (1 hour by train)
住所/大阪市中央区東心斎橋1丁目14-17
電車/大阪メトロ長堀橋駅から徒歩3分 心斎橋駅から徒歩5分
車/関西国際空港から車で50分(電車で1時間)
Opening times
10:00 – 18:00
Tell:
06-6532-6123
Higashishinsaibashi Area Guide
Recommendation
sauna9 myokokogen nigata
An accommodation facility where you can enjoy a wood-fired sauna and experience the four seasons amidst the clean air and forests of the Nasu Mountain Range.
那須連峰の清浄な空気と森の中で、東北の四季を感じ薪サウナでととのうことができる宿泊施設です。
read more
サウナイン新潟妙高高原
sauna9 awaji island west coast
his is a hotel with a public sauna that offers a wellness experience utilizing Japan's beautiful natural environment, clean water sources, and the spirit of Zen.
日本の美しい自然環境、清らかな水源、そして禅の精神を活かしたウェルネス体験ができるパブリックサウナを併設。
サウナイン淡路島西海岸
Edge sauna 9 Shirakawa Fukushima
エッジサウナイン福島白河
"A private villa built along the west coast of Awaji Island. It has a sauna and pool with spectacular ocean views selected as one of the top 100 sunsets, and views of Kobe's nightscape."
淡路島西海岸沿いに建つプライベートヴィラ。夕日100選に選ばれた海辺の絶景を望むサウナとプールがあります。
サウナイン(sauna9) |禅サウナ別荘シェアリング(ホテル/バケーションレンタル/民泊)|東京・大阪・全国 > sauna9 higashishinsaibashi osaka-サウナイン大阪東心斎橋
